Дом, Утесова, 57 Показать на карте
Анапа
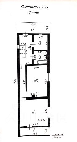
АНАПА!КОТТЕДЖ У МОРЯ!Площадь дома 205,4 кв.м. на 7 сотках земли. Земля ИЖС, прописка. КОТТЕДЖ ДВУХЭТАЖНЫЙ: НА ПЕРВОМ ЭТАЖЕ расположился большой холл 26,7 кв.м, просторная кухня-гостиная 31,5кв.м, спальня 13,1кв.м, ванная комната 5,4 кв.м, гардеробная 8 кв.м.ВТОРОЙ ЭТАЖ - просторная гостиная 53 кв.м, две спальни и полноценная ванная комната.ВИННЫЙ ПОГРЕБ!ВО ДВОРЕ -ГАРАЖ!БЕСЕДКА С КУХНЕЙ И КАМИНОМ!БАНЯ НА ДРОВАХ С КОМНАТОЙ ОТДЫХА!БАССЕЙН!ПЛОДОНОСЯЩИЙ САД!Ландшафтный дизайн на всём участке. ВСЕ ЦЕНТРАЛЬНЫЕ КОММУНИКАЦИИ -ГАЗ!ЭЛЕКТРИЧЕСТВО!ВОДОПРОВОД!КАНАЛИЗАЦИЯ!Коттедж продаётся со всей мебелью и техникой, которые есть на фотографиях.ЗВОНИТЕ!. Код пользователя: 41165Номер в базе: 3216680
205 м2
2 этажа
Бетонные блоки
- Показать контакты
- Добавить в избранное
205 м2
2 этажа
Бетонные блоки
21 700 000
105 648 /м2
