Если цена в объявлении изменится, мы сразу сообщим вам об этом на электронную почту.
Нажимая «Подписаться», вы соглашаетесь с правилами.
продам 3-к, Симферопольское шоссе28 128 000 ₽
16 апр 2024
Дата публикации объявления
Обн. вчера
Дата обновления объявления
5
Количество просмотров (+ просмотры за сегодня)
Турбо x8
320 000 ₽/м²
Чистая продажа
Термин "Чистая продажа" означает, что в квартире никто не прописан или
есть куда выписаться и вывезти вещи. Это лучший вариант для покупателя.
Вероятность срыва сделки минимальна.
Квартира
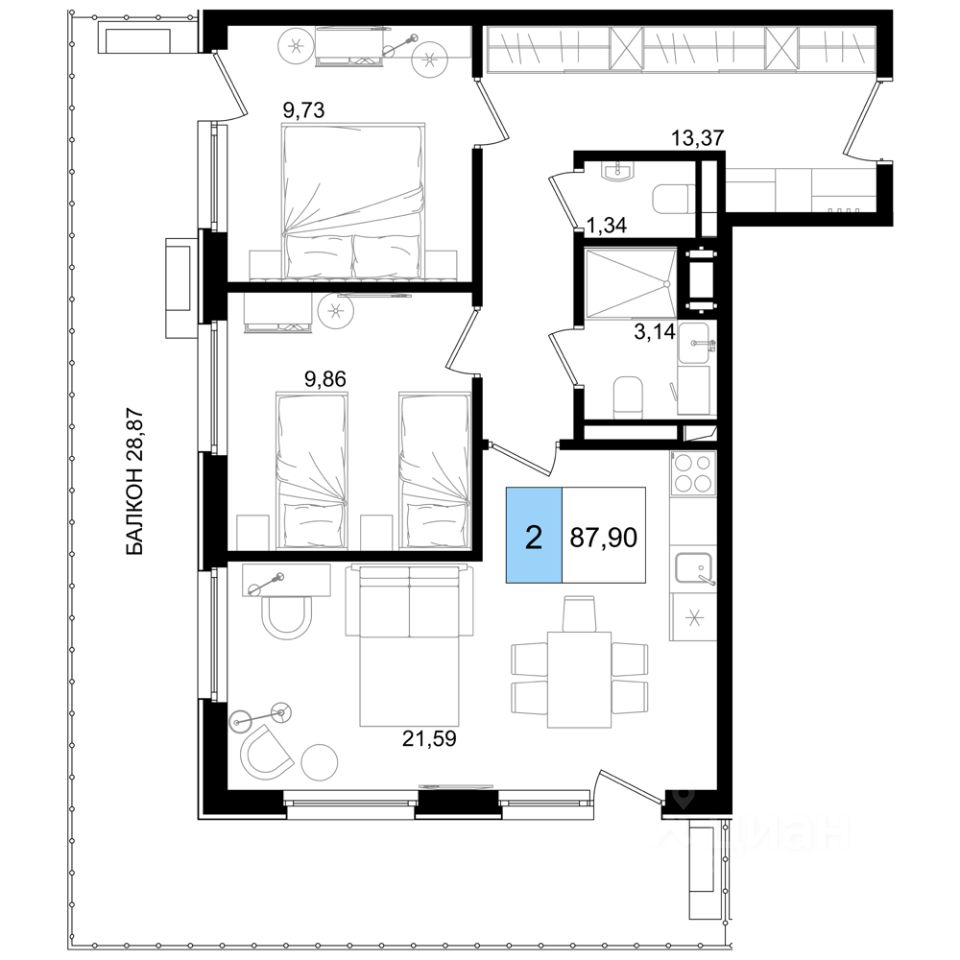
Общая площадь87,9 м2
Тип собственностидоговор долевого участия
Дом
Срок сдачи4 кв. 2026 г.
Этаж2 из 8
Материал домамонолит
Продаются 3-комнатные апартаменты в строящемся доме (Корпус 2), срок сдачи: IV-кв. 2026, общей площадью 90.32 кв.м., на 2 этаже. Новый комплекс от застройщика ''ССК'' расположен по адресу город Анапа, Симферопольское шоссе.