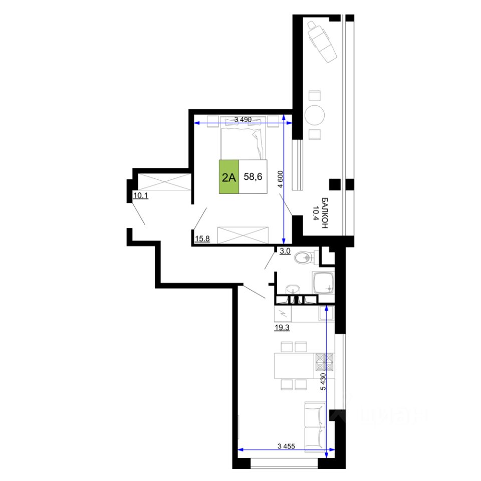
Двухкомнатный номер сочетает практичность и уют: отдельная спальня обеспечивает приватность и комфортный отдых, а кухня-гостиная создает открытое и светлое пространство для приема пищи, общения или работы. Особенность интерьера — окна с ограждением ''французских'' балконов, которые наполняют номер естественным светом, визуально расширяют пространство и дарят ощущение легкости и связи с внешним миром, сохраняя при этом безопасность и тепло.