Если цена в объявлении изменится, мы сразу сообщим вам об этом на электронную почту.
Нажимая «Подписаться», вы соглашаетесь с правилами.
продам 1-к, Анапа12 878 100 ₽
14 окт
Дата публикации объявления
Обн. вчера
Дата обновления объявления
1
Количество просмотров (+ просмотры за сегодня)
Турбо x8
410 000 ₽/м²
Чистая продажа
Термин "Чистая продажа" означает, что в квартире никто не прописан или
есть куда выписаться и вывезти вещи. Это лучший вариант для покупателя.
Вероятность срыва сделки минимальна.
Квартира
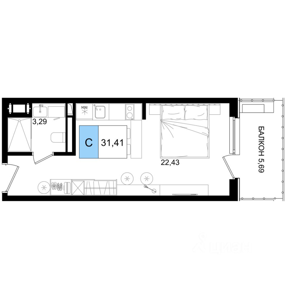
Общая площадь31,41 м2
Тип собственностидоговор долевого участия
Дом
Срок сдачи4 кв. 2026 г.
Этаж8 из 8
Материал домамонолит
Продаются 1-комнатные апартаменты в строящемся доме (Корпус 2), срок сдачи: IV-кв. 2026, общей площадью 31.41 кв.м., на 8 этаже. Новый комплекс от застройщика ''ССК'' расположен по адресу город Анапа, Симферопольское шоссе.