3-к, Владимирская, 55 корп. 3 Показать на карте
Южный рынок
Анапа
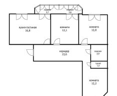
Объект 168937. Ваша мечта о жизни у моря!Представьте себе утренний кофе на уютной террасе с видом на море, а вокруг — тишина и спокойствие. Эта 3-х комнатная квартира в ЖК ''Фея'' — именно то, что вы искали!Устали от шумных улиц и постоянной суеты? Здесь, на Владимирской улице, 55к3, вы найдете идеальное убежище, где каждый день наполняется уютом и комфортом. Забудьте о проблемах с перепланировками и обременениями — ваша новая квартира готова к жизни с чистой историей!Не упустите шанс! Звоните прямо сейчас и запишитесь на просмотр этой потрясающей квартиры!Шикарная 3-х комнатная квартира в самом сердце Анапы с качественной предчистовой отделкой и видом на море, обеспечивающим атмосферу тишины.Площадь: 118 кв.м — достаточно места для всей семьи!Тип: вторичкаСтены: монолитно-каркасныйСостояние: предчистовая отделка — вы можете создать интерьер своей мечты!Окна: МПО, а значит, тепло и уют в любое время года.Санузел: раздельный — удобно для семейной жизни.Застекленная лоджия — идеальное место для отдыха.Отопление: индивидуальное газовое — низкие коммунальные платежи.Ипотека: возможна!Описание инфраструктуры:Вы находитесь в ''золотом квадрате'' Анапы! В шаговой доступности:Школы 4 и 6 — образование для ваших детей всегда рядом.Детские сады — удобство для семей с маленькими детьми.Остановки общественного транспорта — удобно добираться в любую точку города.Южный рынок — свежие продукты и вкусные угощения.Центральный пляж и пляж 40 лет Победы — всего 15 минут пешком!Не упустите свой шанс на комфортную жизнь у моря! Позвоните и запишитесь на просмотр этой чудесной квартиры уже сегодня!
118 м2
10 / 11 этаж
- Показать контакты
- Добавить в избранное
118 м2
10 / 11 этаж
10 999 999
93 220 /м2
